Hazen Residence
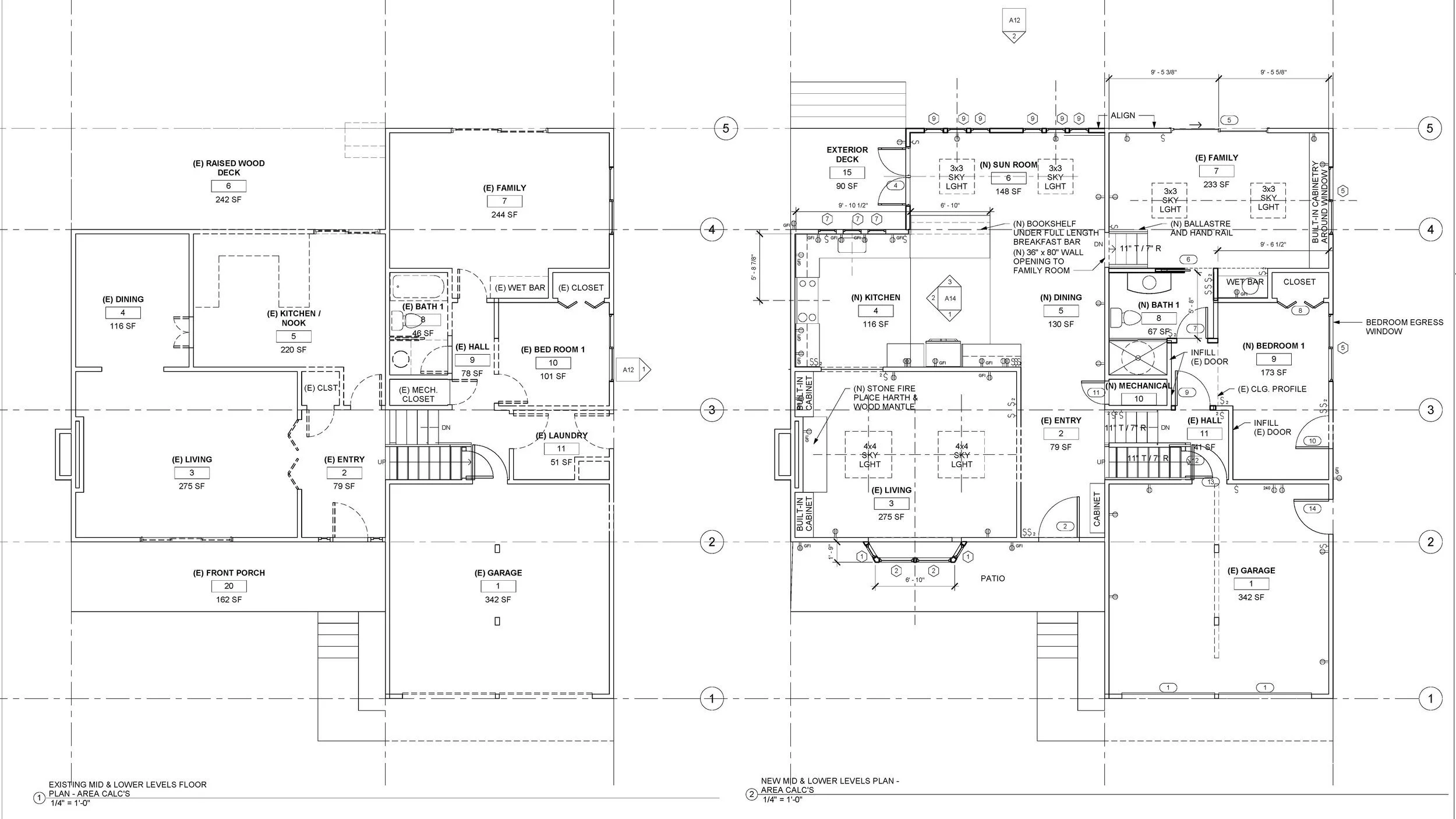
The Client was planning an addition and remodel to their existing split-level house in Sunnyvale. We were able to create more kitchen space by taking the separate kitchen and dining rooms and combining into one. The downstairs living room would connect as a master bedroom suite for their parent, and allow the upstairs master bedroom suite to be remodeled for themselves.










